GT타워 임대 정보 (강남역)

전용 160평/170평/330평
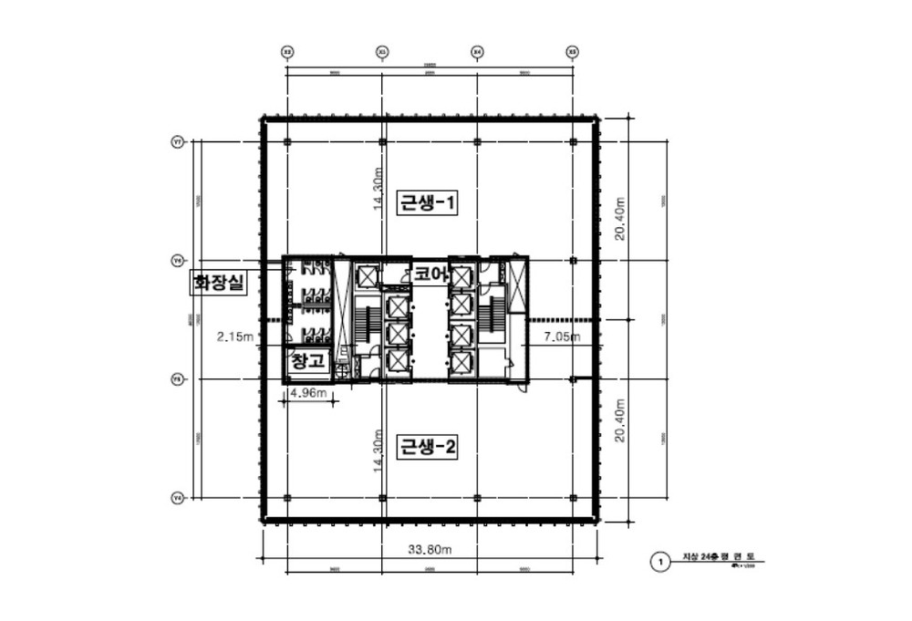
강남역 GT타워

최고층 24층 임대가능.

전용면적
1: 160평
2: 170평
1+2 : 330평

평당 임대료(8.4만)
평당 관리비(3.6만)


문의 : 02-3446-2263

고려청자모티브의 아름다운 곡선형 외관의 랜드마크빌딩입니다.

 

전층 자주식 주차(226대)로 주차환경이 매우 우수하며, 4면이 모두 통유리라 전망이 매우 빼어납니다.

 

상업/업무의 중심인 강남역(테헤란로/강남대로의 교차점) 입지조건 또한 최상입니다.

 

내부에 기둥이 없는 구조로 업무공간 배치에도 용이합니다.

 

세부조건은 유선문의 부탁드립니다.

재입고 알림 신청
휴대폰 번호
-
-
재입고 시 알림
floating-button-img