파르나스타워 임대 정보

기준층 전용 530평
삼성동 파르나스타워

Grand Intercontinental Seoul Parnas
5-STAR HOTEL SERVICE

문의 : 02-3446-2263

성공 비즈니스를 돕는 호텔연계 부대시설

ㆍ세탁 및 구두클리닝 서비스

ㆍ메일링센터, 컨시어지 데스크

ㆍ발렛서비스, 의전 서비스

ㆍ공항 픽업 & 센딩 렌터카 서비스

 

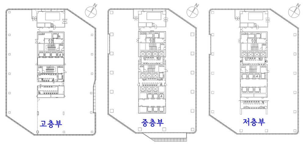
효율적 오피스공간

ㆍ센터코어 배치와 무주구조(기둥X)

ㆍ3m천정고(층고4.5m)

ㆍ로비층 에스컬레이터+22대의 엘리베이터

 

탁월한 교통인프라

ㆍ2호선 삼성역, 9호선 봉은사역 직접연결

ㆍ6개 도시철도 광역환승센터(GTX,KTX등) 예정

ㆍ도심공항터미널 직접연결

 

풍부한 비즈니스인프라

ㆍ글로벌비즈니스 지구단위계획개발 확정지 내 위치(삼성동~잠실)

ㆍ무역센터, 코엑스전시장, 백화점, 영화관, 카지노등의 인프라.

 

★★★★★

진정한 의미의 프라임오피스

 

문의 : 02-3446-2263

 

 

※기준층 평면도

재입고 알림 신청
휴대폰 번호
-
-
재입고 시 알림
floating-button-img